Brook House
Brook House
446 Green Village Rd, Chatham Township
446 Green Village Rd, Chatham Township
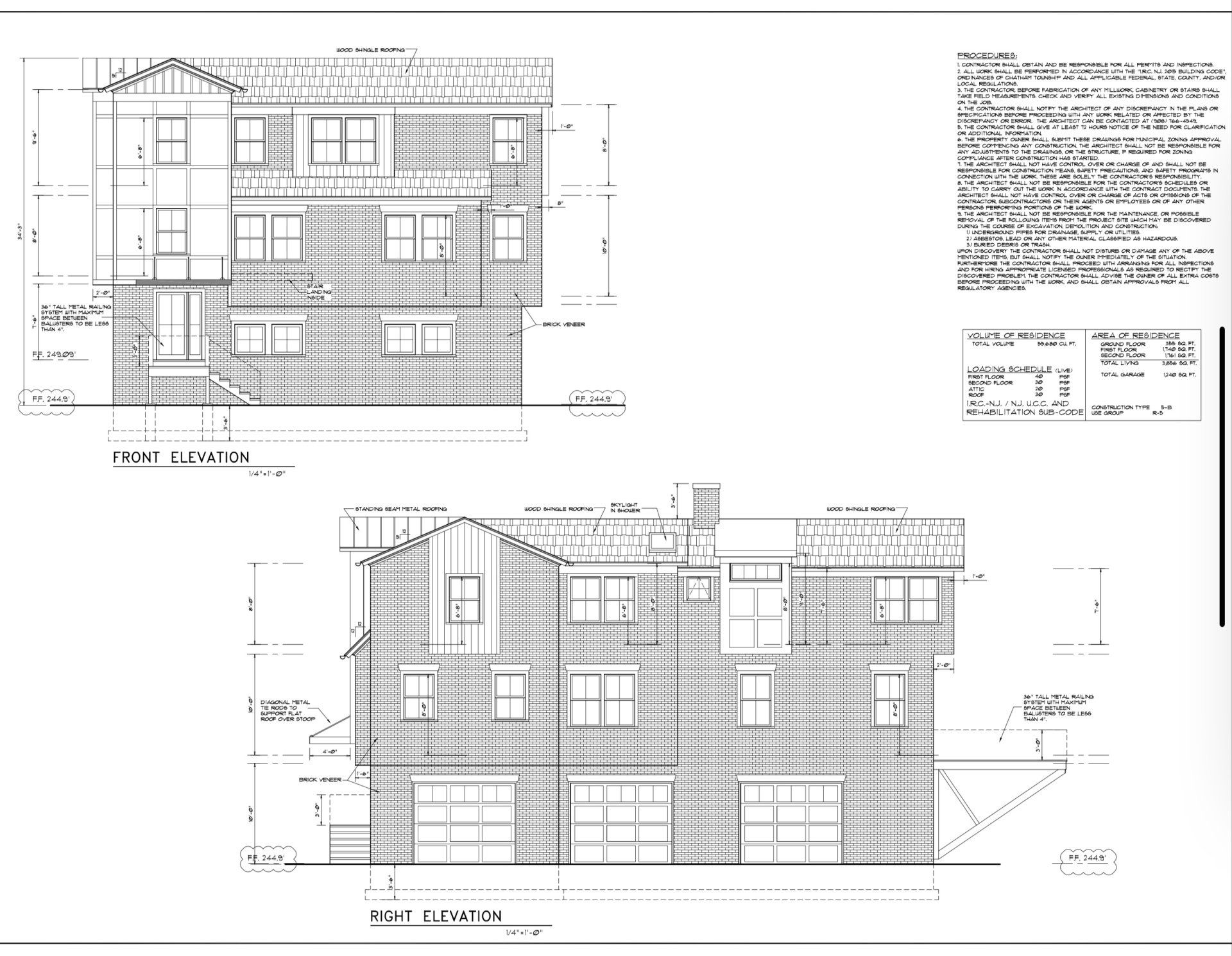
Set on 5.5 acres in a rural section of highly desirable Chatham Township, this custom Scandic home is fully permitted and approved for construction immediately.
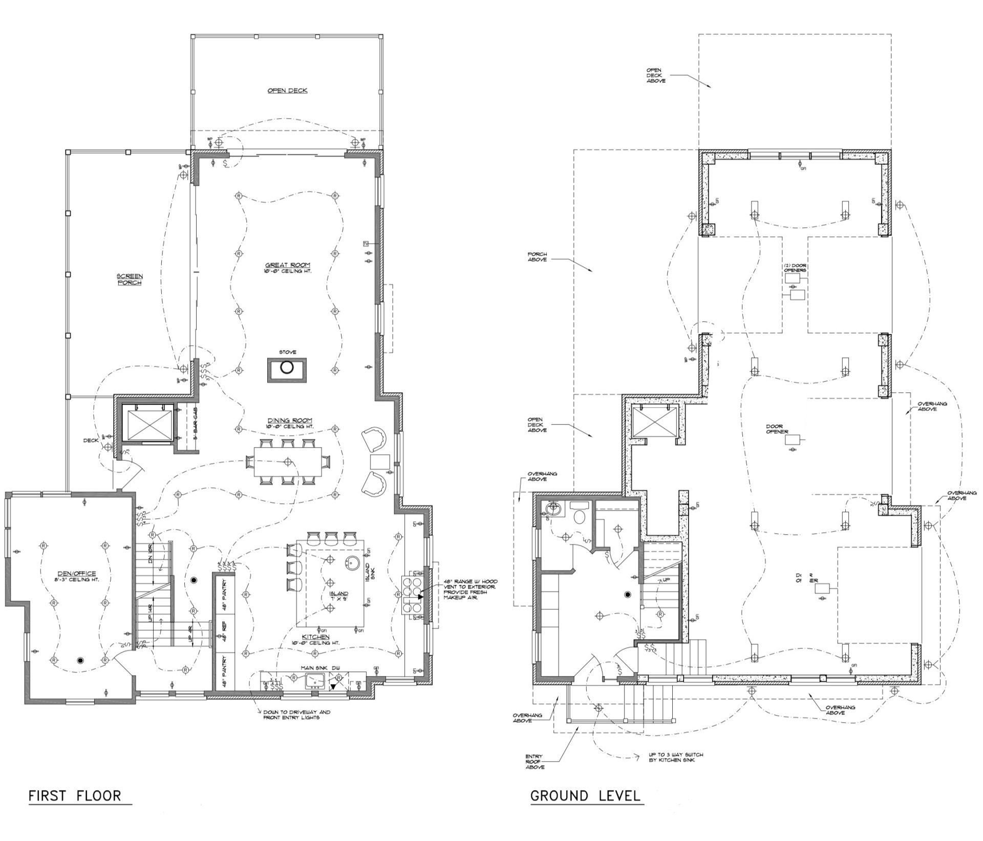
This home is the perfect blend of modern living and low maintenance lifestyle in an ideal location. Conveniently located on approximately 5.5 acres in a rural section of highly desirable Chatham Township, the property is surrounded by Loantaka Brook Reservation. This custom Scandic home is fully permitted and approved for construction immediately. The design concept for this 4500 sqft home includes a main level open floor plan with 4/5 bedrooms above, and multiple locations for seamless indoor and outdoor spaces. The finishing touches are fully customizable to the homeowners’ taste and preferences. Contact us for details and pricing.








